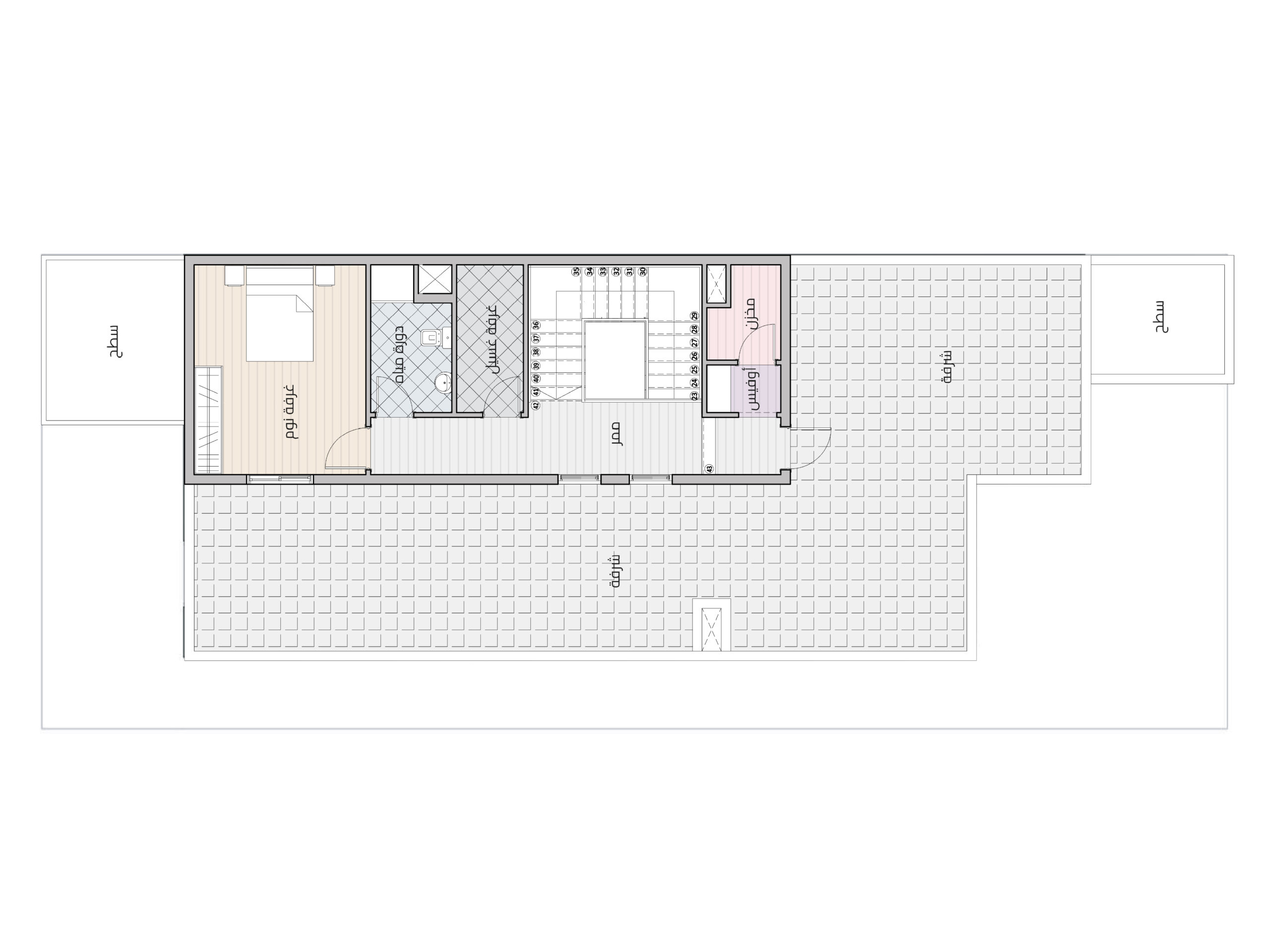
في قلب وجهة سدايم بأبحر الشمالية بجدة، تتجسد المعيشة العصرية بالشراكة مع (NHC). يقدم المشروع نموذجاً مكتمل الأركان من الفلل، حيث تلتقي الحداثة بالخصوصية فيلا، بتصاميم متقنة توفر بيئة آمنة ومتوازنة. كل فيلا صُممت بعناية فائقة لتجعل الحياة اليومية أكثر رُقياً وتفرداً